8 800 000 ₽
Район
Адрес
улица Есауленко, 6Ак2
Этаж
4 / 20
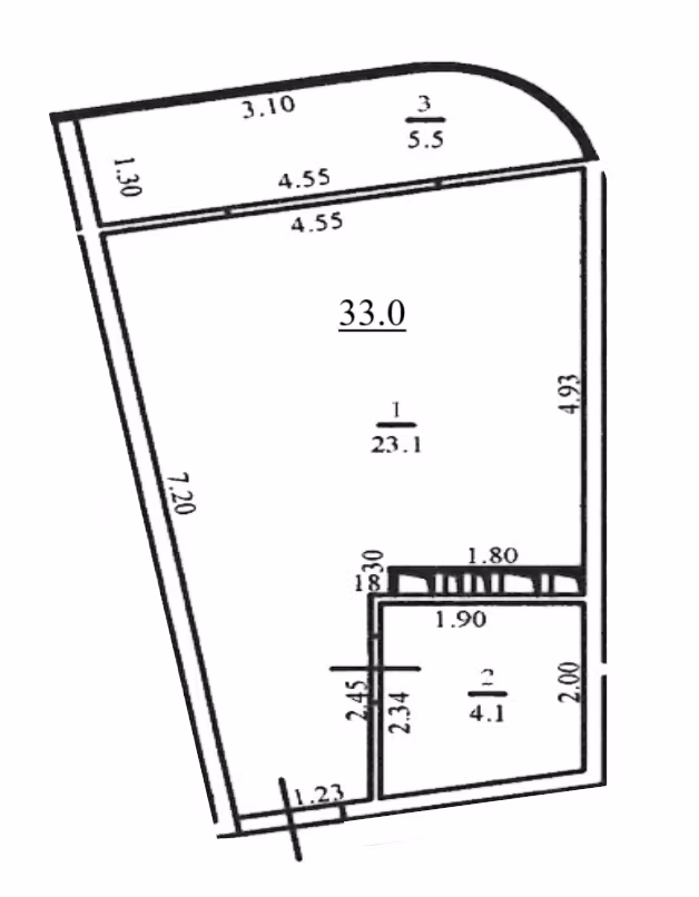
Площадь (общая)
33
Площадь (жилая)
28.9
Высота потолков
2.8
Санузел
Совмещенный
Балкон
Есть
Вид из окон
Горы
Отделка
Цена за метр
270 000
Контекст предложения
| Денежный поток от объекта | старт | Май 2026 до Декабрь 2026 | Декабрь 2027 | Декабрь 2028 | Декабрь 2029 | Декабрь 2030 | Декабрь 2031 | Декабрь 2032 | Декабрь 2033 | Декабрь 2034 | Декабрь 2035 | Декабрь 2036 |
|---|---|---|---|---|---|---|---|---|---|---|---|---|
Стоимость приобретения | руб. | -8 800 000 | ||||||||||
| руб. | -3 960 000 | |||||||||||
Операционные доходы | руб. | 570 448 | 1 356 251 | 1 486 218 | 1 623 172 | 1 776 969 | 1 946 146 | 2 136 431 | 2 336 945 | 2 562 119 | 2 809 811 | 3 088 407 |
| руб. | 513 648 | 1 271 051 | 1 401 018 | 1 537 972 | 1 691 769 | 1 860 946 | 2 051 231 | 2 251 745 | 2 476 919 | 2 724 611 | 3 003 207 | |
Компенсация коммунальных расходов | руб. | 56 800 | 85 200 | 85 200 | 85 200 | 85 200 | 85 200 | 85 200 | 85 200 | 85 200 | 85 200 | 85 200 |
Операционные расходы | руб. | -266 006 | -524 155 | -556 647 | -590 886 | -629 336 | -671 630 | -719 200 | -769 330 | -825 623 | -887 546 | -957 194 |
Эксплуатация3600 руб/м² | руб. | -79 200 | -118 800 | -118 800 | -118 800 | -118 800 | -118 800 | -118 800 | -118 800 | -118 800 | -118 800 | -118 800 |
Коммунальные услуги | руб. | -56 800 | -85 200 | -85 200 | -85 200 | -85 200 | -85 200 | -85 200 | -85 200 | -85 200 | -85 200 | -85 200 |
Налог на имущество | руб. | -1 595 | -2 393 | -2 393 | -2 393 | -2 393 | -2 393 | -2 393 | -2 393 | -2 393 | -2 393 | -2 393 |
25% | руб. | -128 411 | -317 762 | -350 254 | -384 493 | -422 943 | -465 237 | -512 807 | -562 937 | -619 230 | -681 153 | -750 801 |
Чистый денежный поток | руб. | -12 455 559 | 832 096 | 929 571 | 1 032 286 | 1 147 633 | 1 274 516 | 1 417 231 | 1 567 615 | 1 736 497 | 1 922 265 | 2 131 213 |
Денежный поток наростающим итогом | руб. | -12 455 559 | -11 623 462 | -10 693 891 | -9 661 605 | -8 513 971 | -7 239 455 | -5 822 224 | -4 254 609 | -2 518 112 | -595 847 | 1 535 366 |
| Срок окупаемости | 10 лет 1 мес. |
Показатель | 1-й период Май 2026 до Декабрь 2026 | Последний период Декабрь 2036 |
|---|---|---|
Стоимость приобретения | -8 800 000 | |
| -3 960 000 | ||
Операционные доходы | 570 448 | 3 088 407 |
| 513 648 | 3 003 207 | |
Компенсация коммунальных расходов | 56 800 | 85 200 |
Операционные расходы | -266 006 | -957 194 |
Эксплуатация3600 руб/м² | -79 200 | -118 800 |
Коммунальные услуги | -56 800 | -85 200 |
Налог на имущество | -1 595 | -2 393 |
25% | -128 411 | -750 801 |
Чистый денежный поток | -12 455 559 | 2 131 213 |
Денежный поток наростающим итогом | -12 455 559 | 1 535 366 |
| Срок окупаемости | 10 лет | 1 мес. |
Если использовать квартиру 2 месяца в году (июль–август) и сдавать в остальное время:
Учтена потеря дохода в высокий сезон (июль–август) — самые доходные месяцы при аренде.
Аренда покрывает содержание полностью (+ ~362 854 руб./год)
Расчёт ориентировочный. Период личного использования влияет на результат.
Сценарии использования
Есть вопросы по этому варианту?
Проверим актуальность цены, расскажем про условия покупки и управления